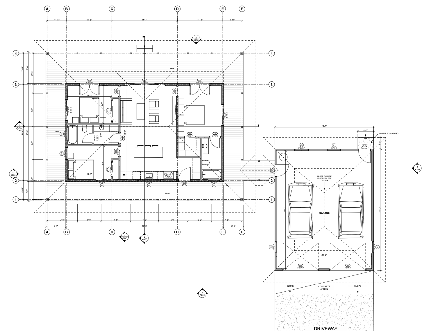
HALE MAMALU | ʻEKOLU
Hale Mamalu | ʻEkolu features 3 bedrooms, and 2 bathrooms. The “Dickey” roof on this home shades the lanai surrounding the interior living spaces and allows for a central space with high ceilings. This design separates the main living space and the garage, but connects them by a covered walkway and similar roofs.
FEATURES
Bedrooms: 3
Baths: 2
Interior Floor Area: 2716
Garage/Carport: 775
Covered Lanai Area: 971
Minimum Lot Size: 95 ft Wide, 77 ft Wide
Architecture Firm: Hawaii Off-Grid
Criteria for reduced Architectural Feeʻs: Must be a property owner on or before the Aug 8th, 2023 Maui Wildfires
Steps to rebuild with this design:
-
Choose a home plan that best align with your needs and preferences.
-
HIOG will conduct a thorough assessment to ensure that your chosen plan can be accommodated on your specific site, considering factors such as topography, zoning regulations, and any site-specific requirement. Some sites may require a boundary and topographic survey in order to complete the site verification. HIOG will notify you during this stage if a survey will be required.
-
Upon successful site verification, finalized the site plan for your approval. This step ensures that the selected plan is optimized for your individual site.
-
You'll have the opportunity to review the proposed home plan on your site before finalizing the plans. This ensures that the design meets your expectations and requirements.
-
Once the plans are reviewed, approved, and finalized, HIOG will handle the completion of all necessary permit documents and assist you with the application for the building permit through the MAPPS system. Permit review fees are to be paid by the homeowner.
-
Yes
-
a) Outside of Scope of Work: Anything not described in the scope of work such as archeological surveys, historical districts submissions, geotechnical survey/report, engineering services, fires prevention system design, monitoring plans, other sub-consultants, construction services, option services, etc. shall be billed at an additional cost and executed through a change order before commencement. 3D renderings, perspectives, and models for design communication aid can be provided at client's request. (Photo realistic renders are outside the scope of work and would be based on client's request and approved proposal.)
b) Additional Work: Any additional work not listed would be outside the scope of work. All items listed will be pursued diligently. To the best of our current knowledge, all items should be achievable. If during the design and engineering process any items are deemed unfeasible, refunds will not be applicable.
c) Late Payments: A late payment finance charge of 15% per month shall be applied to any unpaid balance commencing (30) days after the date of the original invoice unless otherwise stated in this agreement. Additionally, there will be a $250 monthly penalty.
d) Incurred Expenses: Printing, materials, and shipping: Cost + 10 for reimbursable expenses (materials, printing, shipping not specifically covered in the scope of work but necessary for its completion).
e) Cancellation or Termination Fees: Should the client cancel the signed proposal within (72) hours of execution, the initial retainer will be returned in full. Once the (72) hours have lapsed, the proposal will be considered a contract. Should client terminate our services after (72) hours, the initial retainer and applicable subsequent payments will be forfeited by client and applied towards any labor and costs incurred toward the completion of the scope of work. If at the date of termination, the labor and costs incurred by HIOG is greater than the payments received by the client, HIOG reserves the right to any outstanding monies owed. In the case of termination - any and all renderings, drawings, or work produced by HIOG within the scope of work or subsequent change orders will remain the property of Hawaii Off-Grid, LLC. at the discretion of HIOG, the client may have the option to purchase outright any work produced. Notice of cancellation must be in writing.

